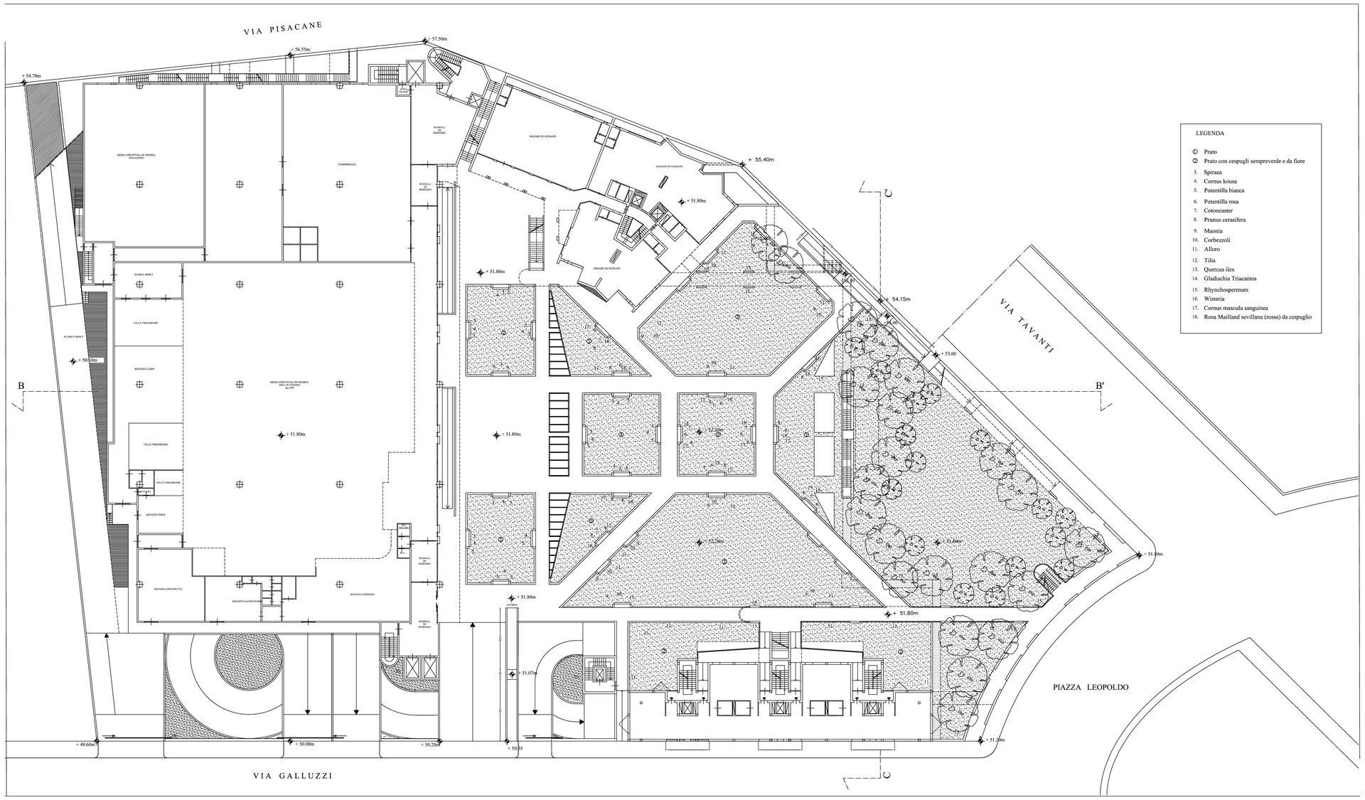
PIANO DI RECUPERO URBANO AREA EX SUPERPILA - GIARDINI PUBBLICI
Progetto
Area ex Superpila: realizzazione di Giardini pubblici e Centro Residenziale, Commerciale, Direzionale
Anno
1995 - 1996
Luogo
Piazza Pietro Leopoldo, Firenze, Italia
Incarico
Collaborazione all'attività progettuale e alla direzione artistica. Progettista incaricato arch. B. Sacchi
Note
Superficie mq 3500
Il progetto del Piano di recupero dell'ex area industriale Superpila in Piazza Pietro Leopoldo prevede, oltre alla realizzazione di edifici ad uso commerciale, residenziale e direzionale, anche un giardino pubblico. La progettazione delle aree a verde comprende l'individuazione delle specie arbustive ed arboree da piantumare: Spiraea, Cornus kousa, Potentilla bianca, Potentilla rosa, Cotoneaster, Prunus cerasifera, Maonia, Tilia, Corbezzolo, Alloro, Quercus ilex, Gladischia Triacantos, Rhynchospermum, Wisteria, Cornus mascula sanguinea, Rosa Mailland sevillana (rossa) da cespuglio





