Autore
B. Sacchi, C. Sisi, G. Gorla, L. Barontini
Titolo
Il Museo Marino Marini
Luogo
Firenze
Editore
Fondazione Marino Marini
Anno
2014
Prefazione
Carlo Sisi
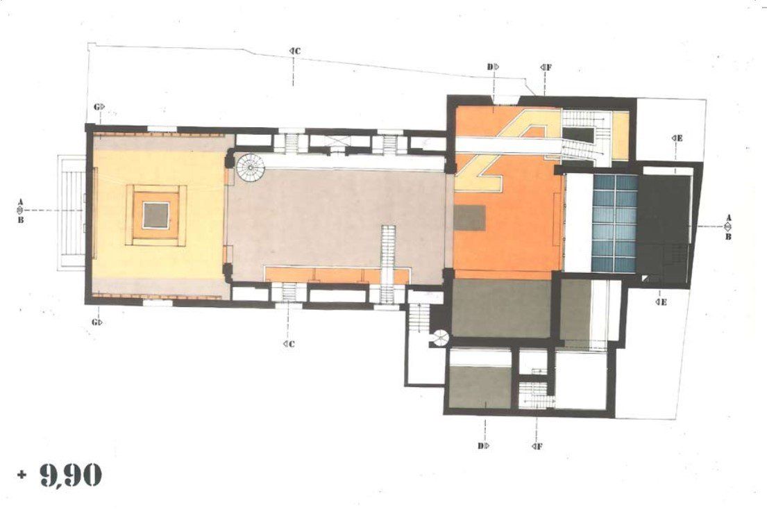
L’idea di pubblicare il testo di una lezione di Bruno Sacchi tenuta all’interno del Museo di San Pancrazio è il contributo più coerente ed affettuoso che si potesse dedicare alla memoria di lui, architetto e uomo di grande intelligenza e sensibilità. Si tratta infatti della trascrizione fedele e per così dire ‘dal vero’ della sua voce, con i toni e gli incidenti grammaticali del parlare corrente, che dobbiamo immaginare integrata negli ampi spazi del Museo: una guida alla lettura dell’edificio e della sua storia recente condotta dal suo stesso artefice, da colui che nel corso di molti anni ne e stato il vigile e affezionato tutore. Numerose sono state infatti le occasioni di vederlo coinvolto nelle vicende evolutive di un organismo architettonicamente compiuto ma sottoposto ai necessari adeguamenti richiesti dalle sempre nuove esigenze della gestione museale; esigenze che mai hanno inciso sull’allestimento pensato in stretta relazione con le idee e le aspettative di Marino Marini, e di tali attenzioni Bruno ci è stato costantemente grato. Nel leggere le sue parole, consegnate a questo prezioso volumetto, ci accorgiamo ora di aver adempiuto ad alcune sue aspettative: l’annessione al percorso del Museo della Cappella Rucellai, che verrà realizzata entro la fine dell’anno corrente, e l’acquisizione del chiostro e di alcuni ambienti adiacenti, per i quali è avviato un progetto da attuare con l’amministrazione comunale. L’occasione di ricordare Bruno si concretizza dunque, oltre la malinconia del ricordo, in fatti e realizzazioni che gli avrebbero dato una grande gioia, quella che lui sapeva esprimere con l’entusiasmo e l’ironia di un intellettuale libero e capace di interpretare l’aria del tempo.





